Shop Drawings of Concrete Structures
We provide high-quality concrete shop drawings that include dimensions, formwork layouts, and reinforcement detailing. Our team ensures clarity, accuracy, and coordination—delivering shop drawings that help contractors minimize errors and accelerate construction. Using both 2D drafting tools and BIM environments, we support structural contractors on residential, commercial, industrial, and infrastructure projects.

Our Expertise Includes
- Concrete Dimension Drawings
- Formwork Drawings
- Rebar Detailing
- 2D Drafting & BIM-Based Outputs
- Precast Shop Drawings
- Coordinated 3D Models
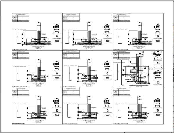
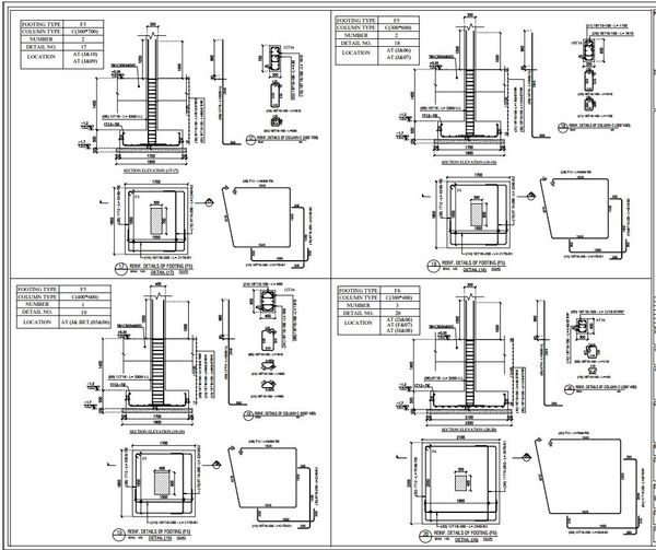
Selected Projects of Rebar Detailing
Start Your Steel Design Project With Us
Whether you're designing a PEB structure, an industrial steel frame, or a complex non-building facility, our team is ready to support your project from concept to execution.