Detailing of Steel Structures
Our steel detailing team produces precise, fabrication-ready drawings and 3D models using industry-leading software. From simple frames to complex steel systems, we deliver clear, coordinated, and constructable detailing packages optimized for fabrication and erection. Our detailing services support fabricators, contractors, and engineering offices with high-quality outputs based on real-world construction practices.

Our Expertise Includes
- Fabrication Drawings
- Erection Drawings
- CNC Files & Material Lists
- Tekla / 3D Fabrication Models
- PEB Buildings
- Complex Steel Structures
- Pipe Racks, Tanks, Silos
- LGS & Modular Structures
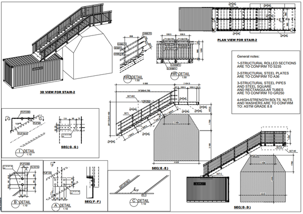
- Stairs, Handrails, Grating, Fences, Barriers
Selected Projects of Steel Detailing
Start Your Steel Design Project With Us
Whether you're designing a PEB structure, an industrial steel frame, or a complex non-building facility, our team is ready to support your project from concept to execution.